Active Takeoff


El software de Estimación y Cómputos más fácil que existe en el mercado.

Con Active Takeoff aumente la productividad de sus proyectos en cuanto a Estimación y Cómputos Métricos, Es muy fácil y amigable de usar.

¡No mas planos en papel ni costosas digitalizadores!

Con este software Active Takeoff para Estimación y cómputos métricos no más montañas de papel en nuestras oficinas ni costosos gastos de impresión.

¡AHORRE TIEMPO DINERO Y ESPACIO!

Sólo necesita planos en pdf, escaneados o en cualquier otro tipo de imagen; importar sus planos es una forma rápida de trabajar, sólo selecciona la extensión a importar y listo para empezar a trabajar.


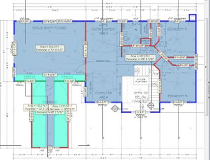
¿MEDIR METROS CUADRADOS, PERÍMETROS Y/O VOLÚMENES?

Con Active Takeoff es sólo cuestión de puntero y click. Calcular áreas tales como paredes, pisos, revestimientos o techos se hace ahora más fácil y confiable. Mide rápidamente longitudes de canto, aleros y valles usando nuestro módulo de convertidor integrado.

¿Necesita estimar cantidad de azulejos, paredes de yeso, pintura, concreto o aislamiento? No hay problema! Sólo use nuestro módulo de Estimación manual. No importa cuál sea el trabajo,

Active TakeOff calculará todo para Usted!

Ahorre tiempo, reduzca costos y obtenga más precisión. Ya no olvidará computar áreas ni superficies. Si está resaltado en color, ya fue computado!

Ya sea que use el sistema Imperial o Métrico, Active Takeoff le proporcionará resultados precisos en los que Usted puede confiar.


ASIGNAR COSTOS A SUS CÓMPUTOS AHORA ES MUY FÁCIL.

A medida que avanza, Usted obtiene de manera instantánea un claro y preciso informe de Estimación. Todo esto, sólo en fracciones de tiempo.

¡Ah!, ¿y mencionamos nuestros precios insuperables en el mercado?


PRUÉBALO HOY MISMO HACIENDO CLICK AQUI!

Prueba gratis por 2 semanas completas.

Miles de usuarios ya están usando Active Takeoff, y les encanta!! Sin engaños, sin diseños sofisticados y sin largas curvas de aprendizaje.

¡Simplemente comience ya! Verá lo fácil de usar Active Takeoff en comparación con nuestra competencia.

Y no podemos dejar de mencionar nuestro excepcional servicio al cliente. Entonces, ¿estás listo para comenzar?

Get Ready to Takeoff

 

 

IDM Ingeniería
Entrada Administrador
Perdiste la Clave? Solicita Acceso